令和08年5月22日 07時15分 更新
次回更新予定日:令和08年5月23日
名古屋市千種区・東区 東区の 店舗・事務所物件 賃貸物件詳細情報
【賃料・共益費・駐車料・償却・礼金は、消費税込み】 【仲介手数料は、賃料・駐車料の1ヶ月分】
トップページへ
閉じる
お問い合わせ
物件コード
02020114-06
地域
名古屋市千種区・東区
号室
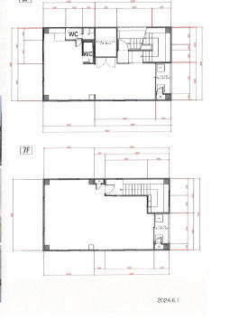
6・7階
地区
東区
面積(坪)
35.52坪
住所1
名古屋市東区東桜
面積m
2
117.44m
2
建物構造
RC造
賃料
¥429,000
和暦築年月
S63
共益費
¥42,900
階/階建
6階〜7階/7階建
保証金
6ヶ月
現況
空室
敷金
引渡時期
相談
償却
70%
取引態様
媒介
礼金
特色
事務所内装 一括貸し 、6階56.08u+7階61.36u、看板料11000円、前テナントセラピー教室、メゾネットタイプ、(設備)、電気・水道・個別空調、エレベータ1基(4人用)、専用給湯・専用WC、、用途地域 商業地域、火災保険:要加入、保証会社:要加入、【賃料等は消費税込み】
地下鉄東山線
栄駅まで 徒歩6分
詳細
掲載されている物件データが現況と異なる場合は現況を優先します。
■関連の地域・地区から検索■
物件一覧
--
名古屋市千種区・東区 東区
物件一覧
--
地下鉄東山線 栄駅
■カテゴリから検索■
店舗