物件コード 11010648-01
地域 名古屋市南部 号室 A
地区 港区 面積(坪) 25.11坪
住所1 名古屋市港区秋葉 面積m2 83.04m2
建物構造 木造 賃料 ¥176,000
和暦築年月 R06/06 共益費  
階/階建 1階〜2階/2階建 保証金 4ヶ月
現況 使用中 敷金  
引渡時期 令和08年01月上旬 償却  
取引態様 専任媒介 礼金  
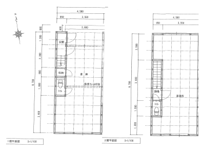
特色 1階:倉 庫:39.39u(11.91坪)、2階:事務所:43.65u(13.20坪)、、倉庫前駐車場有り、共益費込み、飲食店不可、、ネット回線:指定業者有り、ゴミ回収:指定業者有り、火災保険:要加入、保証会社:要加入、、、◇用途地域:第一種住居地域、写真は竣工時の物、【賃料等は消費税込み】
市バス 南陽町 停歩1分
詳細
拡大してご覧になれます
 
拡大してご覧になれます
 
拡大してご覧になれます
 
拡大してご覧になれます
 
拡大してご覧になれます
 
拡大してご覧になれます
 
拡大してご覧になれます
 
拡大してご覧になれます
 
拡大してご覧になれます
 
拡大してご覧になれます
 
拡大してご覧になれます
 
拡大してご覧になれます
 
拡大してご覧になれます
 
拡大してご覧になれます
 
拡大してご覧になれます
 
掲載されている物件データが現況と異なる場合は現況を優先します。