令和07年11月28日 07時46分 更新
次回更新予定日:令和07年11月29日
名古屋市中区 丸の内の 店舗・事務所物件 賃貸物件詳細情報
【賃料・共益費・駐車料・償却・礼金は、消費税込み】 【仲介手数料は、賃料・駐車料の1ヶ月分】
トップページへ
閉じる
お問い合わせ
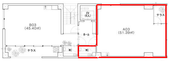
物件コード
06010445-04
地域
名古屋市中区
号室
A03
地区
丸の内
面積(坪)
15.54坪
住所1
名古屋市中区丸の内
面積m
2
51.39m
2
建物構造
RC造
賃料
¥245,000
和暦築年月
共益費
¥44,000
階/階建
3階〜3階/5階建
保証金
1ヶ月
現況
建築中
敷金
引渡時期
令和07年12月中旬
償却
100%
取引態様
媒介
礼金
1ヶ月
特色
2025年12月中旬完成予定、天井高3m 飲食相談可、フリーレント相談可、事務所内装完了後引渡し予定、、(設備)、電気・水道・都市ガス・専用WC、EV1基・セキュリティSECOM、フリーWi-Fi、、用途地域:商業地域、保証会社:要加入(指定有)、火災保険:要加入、【賃料等は消費税込み】
地下鉄桜通線
丸の内駅まで 徒歩4分
詳細
掲載されている物件データが現況と異なる場合は現況を優先します。
■関連の地域・地区から検索■
物件一覧
--
名古屋市中区 丸の内
物件一覧
--
地下鉄桜通線 丸の内駅
■カテゴリから検索■
店舗
|
事務所