令和07年11月14日 08時05分 更新
次回更新予定日:令和07年11月15日
名古屋市東部 天白区の 店舗・事務所物件 賃貸物件詳細情報
【賃料・共益費・駐車料・償却・礼金は、消費税込み】 【仲介手数料は、賃料・駐車料の1ヶ月分】
トップページへ
閉じる
お問い合わせ
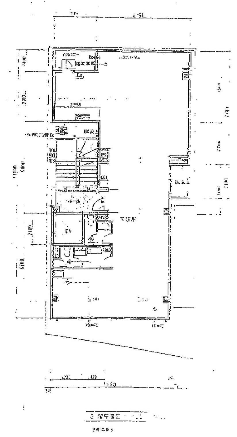
物件コード
07010991-01
地域
名古屋市東部
号室
2階
地区
天白区
面積(坪)
32.46坪
住所1
名古屋市昭和区広路町
面積m
2
107.32m
2
建物構造
S造
賃料
¥495,000
和暦築年月
H11/04
共益費
階/階建
2階〜2階/6階建
保証金
3ヶ月
現況
空室
敷金
引渡時期
相談
償却
100%
取引態様
専任媒介
礼金
特色
前:不動産会社店舗、、スケルトン予定、(天井・トイレ・エアコン残置)、、飲食店可(重飲食は応相談)、、火災保険:要加入、保証会社:要加入、、【賃料等は消費税込み】
地下鉄鶴舞線・名城線
八事駅まで 徒歩1分
詳細
掲載されている物件データが現況と異なる場合は現況を優先します。
■関連の地域・地区から検索■
物件一覧
--
名古屋市東部 天白区
物件一覧
--
地下鉄鶴舞線 八事駅
■カテゴリから検索■
店舗
|
事務所
|
駐車場